**RESERVIERT** Zentral & stilvoll: Renovierte 4,5-Zimmer-Wohnung in Tiengen zum Kauf!
Beschreibung
PLZ / Ort:79761 Waldshut-Tiengen
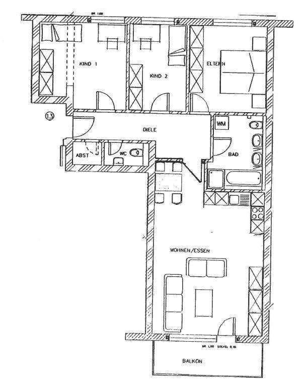
Zimmer:4
Wohnfläche:ca. 96,00 m²
Referenznummer:Zentral & stilvoll: Renovierte 4,5-Zimmer-Wohnung
Kaufpreis:299.000,00 €
Energieausweis
Sehr energieeffizient – niedrige Kosten
- A+
- A
- B
- C
- D
- EEEndenergieverbrauch141 kWh/(m²·a)
- F
- G
- H
Nicht energieeffizient – höhere Kosten
- Energieausweistyp
- Verbrauchsausweis
- Gültigkeit
- 29.09.2023 bis 29.09.2033
- Primärer Energieträger
- Gas
- Wesentliche Energieträger
- Gas
- Baujahr
- 1994
Unterlagen & Dokumente:
PLZ / Ort
79761 Waldshut-Tiengen
Preisinformation
2 Tiefgaragenstellplätze
